Seitenfenster mit Eigenleben

      Seitenfenster mit Eigenleben

      Hallo,

      ich habe seit gestern ein merkwürdiges Problem.
      Das Fenster auf der Fahrerseite geht nicht mehr zu bzw. nicht mehr dann wenn ich es will.
      Egal ob im Stand oder während der Fahrt, wenn ich das geöffnete Fenster schließen will,
      also auch egal ob es 5 cm geöffnet ist oder komplett geht es zwar zu aber dann fährt
      es sofort komplett runter.
      Wenn ich den Schalter dann wieder betätige fährt es komplett hoch und sofort wieder
      runter.
      Nur wenn ich es beim hochfahren kurz bevor es ganz oben ist anhalte und dann etwas
      warte und wieder den Schalter zum komplett schließen betätige, fährt es komplett
      hoch und bleibt zu. Das funktioniert im Stand und während der Fahrt so.

      Was könnte das sein???
      Hat er so ne art Sicherheitseinrichtung wegen einklemmgefahr oder so?
      D.h. Wenn man den Schalter betätigt um zu zufahren, kann man den Schalter loslassen und die Scheibe fährt von allein hoch.....
      Runterwärts haben es eh fast alle. Aber raufwärts?
      z.B. In meinem Sigma gibt es die Einrichtung nicht. Ich muß draufbleiben um das Fenster zu schließen.

      Es könnte sein das es nicht mehr erkannt wird das das Fenster an seine Endposition angekommen ist und das SG denkt da wird was eingeklemmt und fährt wieder runter.....
      Eventuell hat das SG ne 'Macke

      Erst mal so ne Idee.....
      Nimm das Leben nicht zu ernst, lebend kommst du da sowieso nicht raus 8)

      Theorie ist, wenn man alles weiß,
      aber nichts funktioniert.
      Praxis ist, wenn alles funktioniert,
      aber niemand weiß warum.
      Bei uns sind Theorie und Praxis vereint:

      Nichts funktioniert
      und keiner weiß, warum.
      :whistling:
      Das hat nix damit zu tun ob das Fenster mit einem Klick automatisch hochfährt. Genau das gleiche Problem hat mein Colt auch und da muss ich Fensterheber gedrückt halten bis die SCheibe oben ist. Kurz vorher muss ich genauso wie du stoppen und sachte bis zum Anschlag fahren. Die Sache steht mit auf Stefans ToDo-Liste. Ich denke da wird der Einklemmschutz verstellt sein oder irgendwas an den eingestellten Laufzeiten der Scheibe.
      Mitsubishi Sigma 3,0l 24V, 205 PS, Bj. 1994



      Die 388 auf dem Elbetreffen!
      Versuch mal die Fensterführungen, also die Rille wo die Scheibe drin läuft., von oben bis unten richtig satt nass zu machen. Dann versuch nochmal die Scheibe zu schließen, sollte dann ein bis zwei mal gehen. Ich vermute, dass die Scheibe auf dem letzten Stück zu schwer geht, der Einklemmschutz denkt dann dass was dazwischen ist und fährt wieder runter.
      ALternativ kannst du auch versuchen der Scheibe beim hochfahren zu helfen, sollte auch funktionieren.
      Beste Grüsse, Frank

      Ich bin nur verantwortlich für das was ich schreibe, nicht für das was Du verstehst! :ideaa

      Einfachheit ist die höchste Form der Raffinesse (Leonardo da Vinci)

      Link zu den Unterhaltskosten Pajero 2.8 TD:
      Hm,
      also wenn die Scheibe dabei Probleme hat muss das sehr unmerklich sein.
      Da das Fenster von unten bis oben in gewohnter Geschwindigkeit schließt,
      bis zum Anschlag und dann sollte zu bleiben, geht aber dann wieder auf...

      Das mit den anfeuchten werde ich gleich nachher mal probieren.

      Gugga schrieb:

      Das hat nix damit zu tun ob das Fenster mit einem Klick automatisch hochfährt.

      Den Einklemmschutz mit wieder runterfahren haben nur die Fensterheber die auch automatisch hochfahren können........
      Ohne die Automatik ist der Klemmschutz über ne Rutschkupplung oder ähnliches gemacht. Aber das Fenster fährt dann nicht runter, weil keine Elektronik dahinter steht....

      @ Pajero Trophy

      Eventuell hat das SG seine Stellungen vergessen. Versuch mal das System Stromlos bzw. Spannungslos zu machen. Dann wieder Spg. drauf und das SG neu anlernen. Ich denke mal das das SG durch die Umdrehungen des Motors berechnet in Welcher Stellung das Fesnster sich befindet.
      Ist glaube ich auch so bei den Schiebedächern ähnlich gleich.....
      Nimm das Leben nicht zu ernst, lebend kommst du da sowieso nicht raus 8)

      Theorie ist, wenn man alles weiß,
      aber nichts funktioniert.
      Praxis ist, wenn alles funktioniert,
      aber niemand weiß warum.
      Bei uns sind Theorie und Praxis vereint:

      Nichts funktioniert
      und keiner weiß, warum.
      :whistling:
      Mado, das ist ein Pajero, keen Sigma. Da is keen Steuertier für de Fenster, nur n simples Relais. Der Unterbrecher sitzt im Motor...;)
      Beste Grüsse, Frank

      Ich bin nur verantwortlich für das was ich schreibe, nicht für das was Du verstehst! :ideaa

      Einfachheit ist die höchste Form der Raffinesse (Leonardo da Vinci)

      Link zu den Unterhaltskosten Pajero 2.8 TD:
      Einklemmschutz bei den elektrischen Fensterhebern gab es bei Mitsubishi ab dem Galant EA0, dem Carisma und dem SpaceStar. Die Fahrzeuge danach hatten das dann auch.
      "Wahrheit ist so uninteressant!"
      Qetesh /Vala Mal Doran

      "Ich dachte immer, jeder Mensch sei gegen Krieg, bis ich herausfand, dass es welche gibt, die dafür sind, besonders die, die nicht hingehen müssen."
      Erich Maria Remarque (Dt. Schriftsteller)

      Fjordblaues Imperium

      Pajero_V20 schrieb:

      Mado, das ist ein Pajero, keen Sigma. Da is keen Steuertier für de Fenster, nur n simples Relais. Der Unterbrecher sitzt im Motor...;)
      Muß woll doch ein schlaues Relais sein, das er das Fenster wieder runterfahren kann ohne das man es im sagt. Und sowieso wenn man kurz bevor es ganz zu ist, kurz warten muß und erst das Fenster sich schließen lässt..... :D :D aber wer weiß.....
      noterror
      Nimm das Leben nicht zu ernst, lebend kommst du da sowieso nicht raus 8)

      Theorie ist, wenn man alles weiß,
      aber nichts funktioniert.
      Praxis ist, wenn alles funktioniert,
      aber niemand weiß warum.
      Bei uns sind Theorie und Praxis vereint:

      Nichts funktioniert
      und keiner weiß, warum.
      :whistling:
      Nö, Pajero-Relais sind jenau so doof wie Sigma-Relais.:D Aber haste schon ma wat von Bi-Metall jehört? Aber pssst, nüsch petzen... ;)
      Aber so sind se, de Sigma-Leutz, warum eenfach wenn et ooch kompliziert jeht...:D noterror
      Beste Grüsse, Frank

      Ich bin nur verantwortlich für das was ich schreibe, nicht für das was Du verstehst! :ideaa

      Einfachheit ist die höchste Form der Raffinesse (Leonardo da Vinci)

      Link zu den Unterhaltskosten Pajero 2.8 TD:
      Bi-Metall???? aber nur wenn komplett zu schaltet es ab und gut. Aber er wird n Teufel tun um die Richtung zu ändern.....

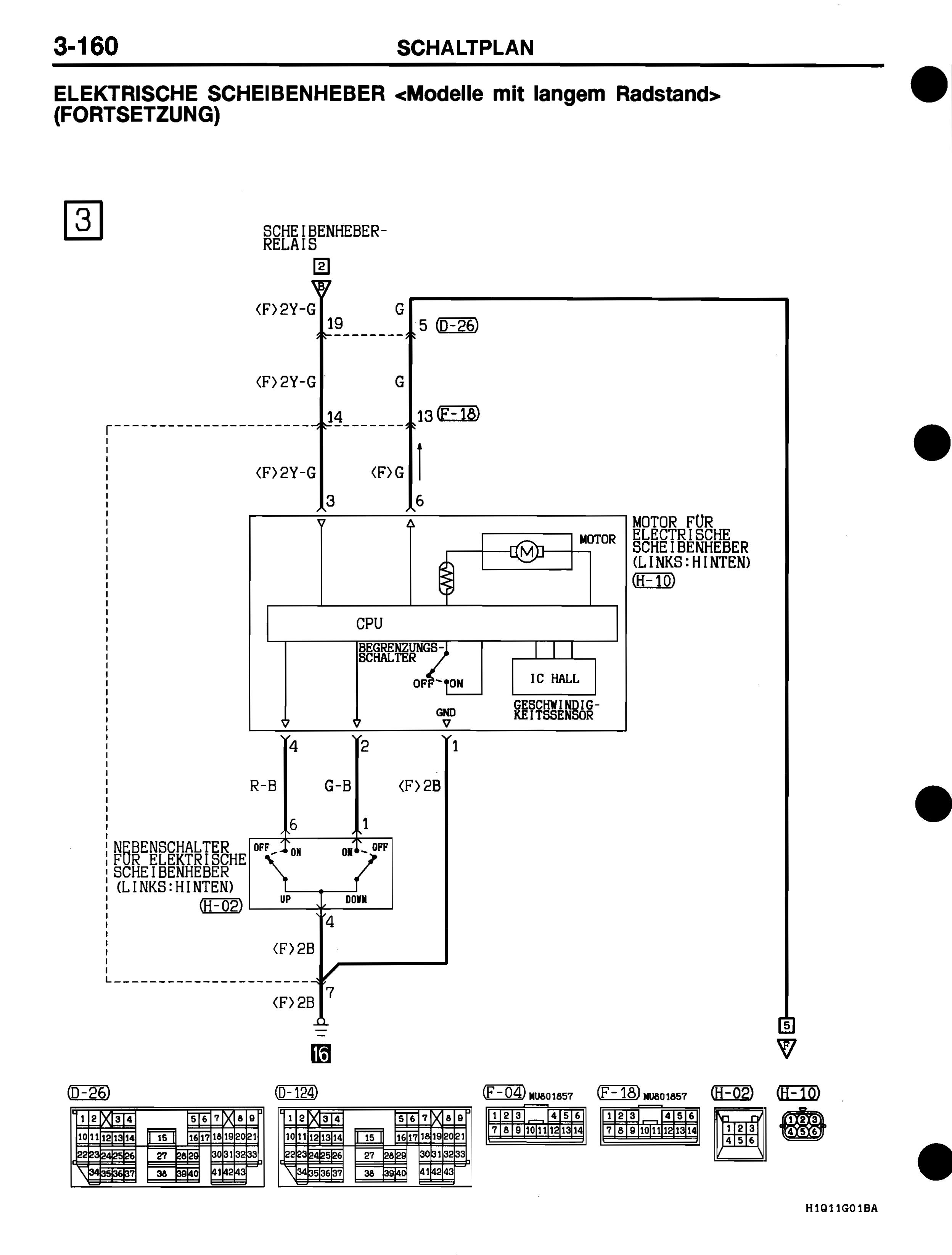
      schau mal wat icke jefunden hab.....
      Bilder
      • Pajero_-_2001_-_Werkstatt-Anleitung_Verdrahtungsanleitung_01.jpg

        455,13 kB, 2.496×3.288, 16 mal angesehen
      Nimm das Leben nicht zu ernst, lebend kommst du da sowieso nicht raus 8)

      Theorie ist, wenn man alles weiß,
      aber nichts funktioniert.
      Praxis ist, wenn alles funktioniert,
      aber niemand weiß warum.
      Bei uns sind Theorie und Praxis vereint:

      Nichts funktioniert
      und keiner weiß, warum.
      :whistling:
      Jo, sieht schön aus. Is aber vom V60...:D Der V20 bis ich glaube!!! 97 hat ein Bimetall im Motor, ab 97 is das mit ner CPU am Hebermotor gesteuert. Kannste glooben oder ooch nüsch, aber ick such jetze keenen Schaltplan... :heyhey
      Beste Grüsse, Frank

      Ich bin nur verantwortlich für das was ich schreibe, nicht für das was Du verstehst! :ideaa

      Einfachheit ist die höchste Form der Raffinesse (Leonardo da Vinci)

      Link zu den Unterhaltskosten Pajero 2.8 TD:
      Naja mein Pajero ist Bj. 99

      Und das beste kommt jetzt, die letzten zwei Tage hat das Fenster wie beschrieben gesponnen.
      Ich habe es heute provoziert, aber nix ist passiert das Fenster schließt ordnungsgemäß ?( ?( ?( ?( ?(
      Also aktuell ist der Fehler behoben, wenn er wieder auftritt werde ich es mit euren Tipps probieren
      Dürfte dann wirklich an den Führungen liegen. Manchmal geht die Scheibe dann zu schwer, und öffnet wieder. Ist abhängig von Temperatur, Feuchtigkeit, dem Liebesleben der Pflastersteine bei senkrechter Mondeinstrahlung....Lässt sich nicht wirklich reproduzieren... §§unschuld
      Beste Grüsse, Frank

      Ich bin nur verantwortlich für das was ich schreibe, nicht für das was Du verstehst! :ideaa

      Einfachheit ist die höchste Form der Raffinesse (Leonardo da Vinci)

      Link zu den Unterhaltskosten Pajero 2.8 TD:
      Und um Dich engültig zu verunsichern, habe ich auch noch nen Erlebnis zu Deinem Fehler:


      Am MONSTER (3,0 V6) hatte ich ein ähnliches Problem und auch dort mit allerlei Mittelchen hin und her probiert, Laufschienen des Fensterglases oberhalb gesäubert und nass gemacht, Schienen und Gestänge in der Tür gesäubert + gefettet (blöde Arbeit, da Verkleidung runter, Folie runter und dann auch noch blödes rankommen in der engen Tür) also sämtlichen Blödsinn probiert und gemacht............

      Ergebnis - der Fehler trat trotzdem ab und zu mal auf.......... :whats :whats :whats :whats

      Dann aus wirklich dummen Zufall das Bedienelement des FH gewechselt (die 2 Schalter Fahrertür) und siehe da - vortan lief der Quatsch störungsfrei. :thumbsup: :thumbsup: :thumbsup: :thumbsup:
      Warum das so war, konnte mir niemand erklären aber das war mir ja auch völlig wurscht. Der FH ging wieder und alles war schön........... :love: :love: :love:
      Leute, die mit mir nicht auskommen, müssen eben noch an sich arbeiten !!! $finger $finger $finger



      Im Laufe der Jahre begriff ich, daß es unmöglich ist, allen zu gefallen. Daher entschied ich, einfach Allen auf den Sack zu gehen.
      Und ich liebe es..........

      Pajero Trophy schrieb:

      Naja mein Pajero ist Bj. 99


      Dann könnte er auch schon den Einklemmschutz haben. Es sollte dazu ein Hinweis in der Bedienungsanleitung/ Bordbuch stehen.
      "Wahrheit ist so uninteressant!"
      Qetesh /Vala Mal Doran

      "Ich dachte immer, jeder Mensch sei gegen Krieg, bis ich herausfand, dass es welche gibt, die dafür sind, besonders die, die nicht hingehen müssen."
      Erich Maria Remarque (Dt. Schriftsteller)

      Fjordblaues Imperium
      Den Einklemmschutz haben auch schon die vorherigen Baujahre !!!!!!!! Allerdings haben die noch kein Steuergerät dafür sondern ein Relais / Bimetall................ noterror
      Leute, die mit mir nicht auskommen, müssen eben noch an sich arbeiten !!! $finger $finger $finger



      Im Laufe der Jahre begriff ich, daß es unmöglich ist, allen zu gefallen. Daher entschied ich, einfach Allen auf den Sack zu gehen.
      Und ich liebe es..........
      Schreib ich hier für die Wand? X(
      Die V20 haben ALLE kein Steuergerät. Bis 97? haben die ein Bimetal im Motorgehäuse und ab 97? haben die ne CPU im Motorgehäuse. Muss ick erst nen Schaltplan suchen? X(
      Beste Grüsse, Frank

      Ich bin nur verantwortlich für das was ich schreibe, nicht für das was Du verstehst! :ideaa

      Einfachheit ist die höchste Form der Raffinesse (Leonardo da Vinci)

      Link zu den Unterhaltskosten Pajero 2.8 TD: